
De olika byggblocken
Varje stomme med Bestablock är uppbyggt av ett antal olika block – kombinerade och anpassade för att passa varje byggnad. Ingen bearbetning behövs, dvs man behöver inte såga eller göra något med blocken – bara montera dem enligt monteringsritningen. Lätt som att bygga med legoklossar!
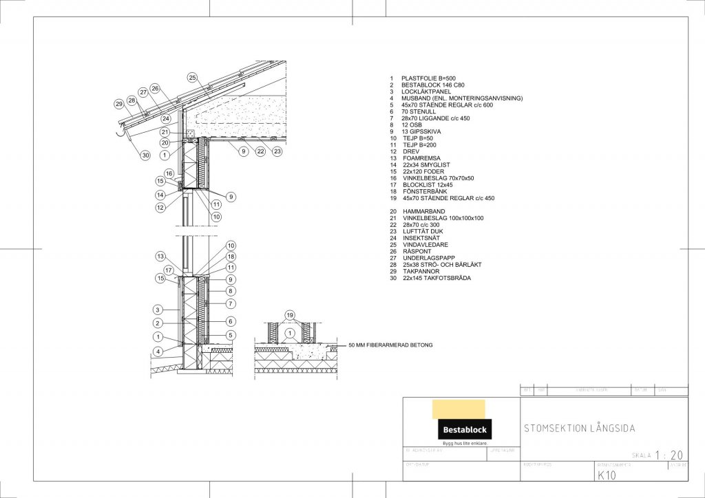
Här nedan följer några av de vanligaste typerna av Bestablock samt exempel på monteringsritning.








